MENU

TEL

MAIL

物件紹介

ジースクエア越谷 4900万円

4900

物件種別

中古マンション

所在地

埼玉県越谷市宮本町2丁目

間取り

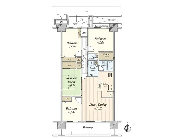
4LDK

築年月

2000年05月

Property Description

物件概要

物件名

ジースクエア越谷 4900万円

金額

4900万円

物件種別

中古マンション

所在地

埼玉県越谷市宮本町2丁目

アクセス

東武伊勢崎線「越谷」駅徒歩13分

間取り

4LDK

築年数

2000年05月

階数/階建

5階/地上19階建

向き

現況

居住中

専有面積

89.33㎡(約27.02坪)

バルコニー面積

12.6㎡

トランクルーム

面積

トランクルーム面積0.5㎡

建物構造

鉄骨鉄筋コンクリート造

総戸数

120戸戸

建物構造

鉄骨鉄筋コンクリート造

駐車場

現状空き1台有り(月額10,000~20,000円)※2025年5月20日現在

管理費等

10,500円円

修繕積立金

25,120円

その他費用

フレンドリークラブ500円/月

管理会社

越谷管理株式会社

管理形態

全部委託

管理員勤務形態

日勤

分譲会社

日商岩井不動産

施工会社

大成建設

設計会社

長谷工コーポレーション

土地権利

所有権

引渡時期

相談

取引態様

仲介

備考

専有面積にはトランクルーム面積0.5㎡を含む

■ おススメポイント ━━━━━━━━━━━━━━━・・・・・

○ 東京メトロ東西線「東陽町」駅 徒歩13分

東京メトロ半蔵門線「住吉」駅 徒歩15分

都営新宿線「住吉」駅 徒歩15分

○ 東京メトロ有楽町線「千石」駅(仮称)

2030年半ば暫定開業予定

○ 南向き/5階部分につき陽当り・通風良好

○ 専有面積89.00平米/4LDK

○ 収納に便利なトランクルーム(0.8平米)有

※専有面積89.00平米に含む

○ プライベート空間の玄関ポーチ(4.42平米)有

○ 各居室収納あり

○ ウォークインクローゼット

○ 24時間対応宅配ロッカー

○ 総戸数596戸のビッグコミュニティ

○ ペット飼育可(細則有)

■ 周辺環境 ━━━━━━━━━━━━━━━・・・・・

○ セブンイレブン宮本町2丁目店・・・徒歩6分(約400m)

○ まいばすけっと宮本北店・・・徒歩7分(約450m)

○ しばさき内科クリニック・・・徒歩3分(約300m)

○ 宮本町二丁目第1児童公園・・・徒歩3分(約190m)

○ 越ヶ谷小学校・・・徒歩14分(約1100m)

○ 中央中学校・・・徒歩5分(約350m)

Floor plan

間取り図

Gallery

ギャラリー